Обследование технического состояния вентиляционных и дымовых каналов (форма №20)
Газовая служба «НГСС РУС» выполняет профессиональное обследование систем дымоудаления и вентиляции на основании действующей Лицензии МЧС России по Республике Башкортостан №02-Б/00048 от 05.05.2014г. По результатам проверки выдается официальное техническое заключение (Акт формы №20), необходимое для предоставления в газовую службу (ГРО) и органы жилищного надзора. Действующий на основании лицензии МЧС России По Республике Башкортостан №02-Б/00048 от 05.05.2014г.
НГСС РУС
В каких случаях требуется оформление Акта:
НГСС РУС
Мы выполняем комплексный инструментальный контроль согласно СП 60.13330.2020 и СП 7.113130.2013:
НГСС РУС
География оказания услуг
На данный момент выдача Актов формы №20 и техническое обследование осуществляются на следующих территориях:
Республика Башкортостан:
Челябинская область:

НГСС РУС
Консультация:
НГСС РУС
Почему важно содержать дымоходы и вентиляцию в порядке:
Исправные каналы — это не формальность для получения бумаги, а реальная безопасность людей.
НГСС РУС
Почему стоит обратиться в
НГСС РУС
Мы несем юридическую и моральную ответственность за каждый выписанный документ. У нас нельзя получить Акт №20 «просто так». Мы проводим реальную проверку, потому что исправная вентиляция — это минимальное требование безопасности, которым категорически нельзя пренебрегать
Опыт с 2005 года
более 20 лет экспертности в проектировании и строительстве газовых систем.
Официально
работаем на основании лицензий. Наши акты принимаются во всех подразделениях газовой службы.
Оперативно
выезд инженера и выдача готового акта на объекте в течение 24 часов.
Профессиональное оборудование
собственный парк диагностических приборов и спецтехники.
НГСС РУС
НГСС РУС
Как гарантированно получить Акт формы №20 и быть уверенным в безопасности своего дома?:
Главная рекомендация от инженеров НГСС РУС: внимательно изучите паспорт вашего газового оборудования. Завод-изготовитель уже всё продумал и рассчитал за вас: в документации к каждому котлу или колонке четко прописаны правильные методы установки, требуемые отступы и строгие нормативы. Ниже мы привели примеры таких типовых требований:

ПАМЯТКА ОТ НГСС РУС
Вариант выхода коаксиального дымохода
Требования к размещению дымовых каналов
ПАМЯТКА ОТ НГСС РУС
Схема устройства коаксиального дымохода парапетного типа
На схеме справа показано правильное устройство коаксиального дымохода парапетного типа.


ПАМЯТКА ОТ НГСС РУС
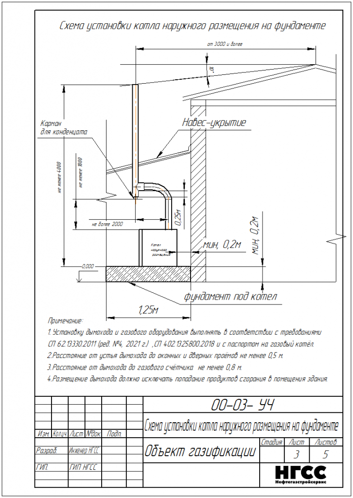
Схема установки котла наружного размещения на фундаменте
Требования к размещению дымовых каналов
ПАМЯТКА ОТ НГСС РУС
Схема установки котла наружного размещения на фундаменте
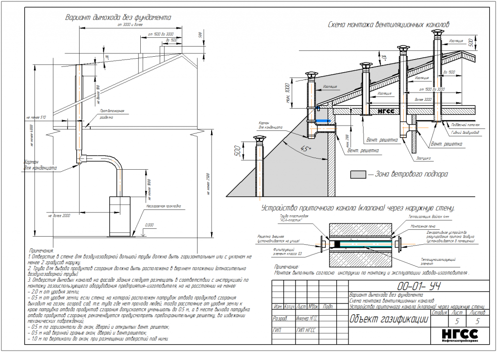
Многие заказчики ошибочно полагают, что для притока воздуха достаточно открытого окна. Однако по нормативам наличие форточки ни в коем случае не заменяет полноценную систему вентиляции. Даже идеальная вытяжка не будет работать без постоянного, независимого поступления свежего воздуха. Поэтому установка отдельного приточного клапана в стену — это не прихоть, а жесткое требование. Без него нормальной тяги не будет, и Акт формы №20 выдан не будет.
